Headstart Roof and Gym Renovations

Pikeville, Tennessee

Size:

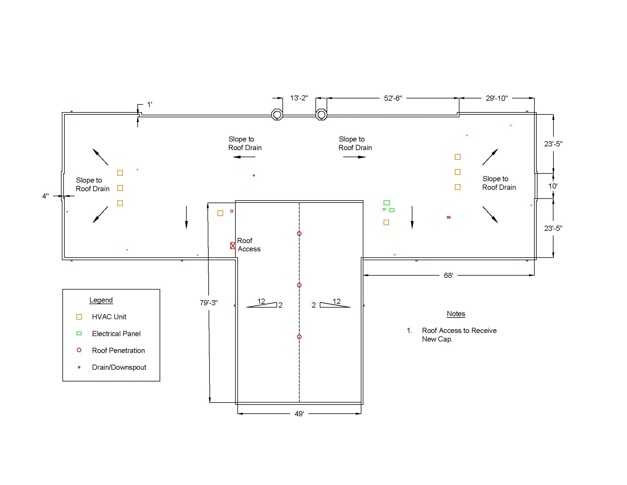
31,380 sq. ft.

Status:

Complete

Type:

Renovations

Year:

2022

The gym floor renovation and roof replacement are essential upgrades that address safety, maintenance, and long-term functionality of the facility. The project includes replacing 13,500 square feet of existing roof on the Bledsoe County Headstart Building and renovate the adjacent 17,882 square feet Bledsoe County Gymnasium. Renovating the gym floor will improve performance, reduce injury risks, and enhance the appearance and usability of the space. Replacing the aging roof will prevent water damage, improve energy efficiency, and protect the building’s structural integrity.